Leave a Message

Thank you for your message. I will be in touch with you shortly.

68220 Mccallum Way

$480,000
68220 Mccallum Way, Cathedral City, CA 92234
68220 Mccallum Way

68220 Mccallum Way

$480,000

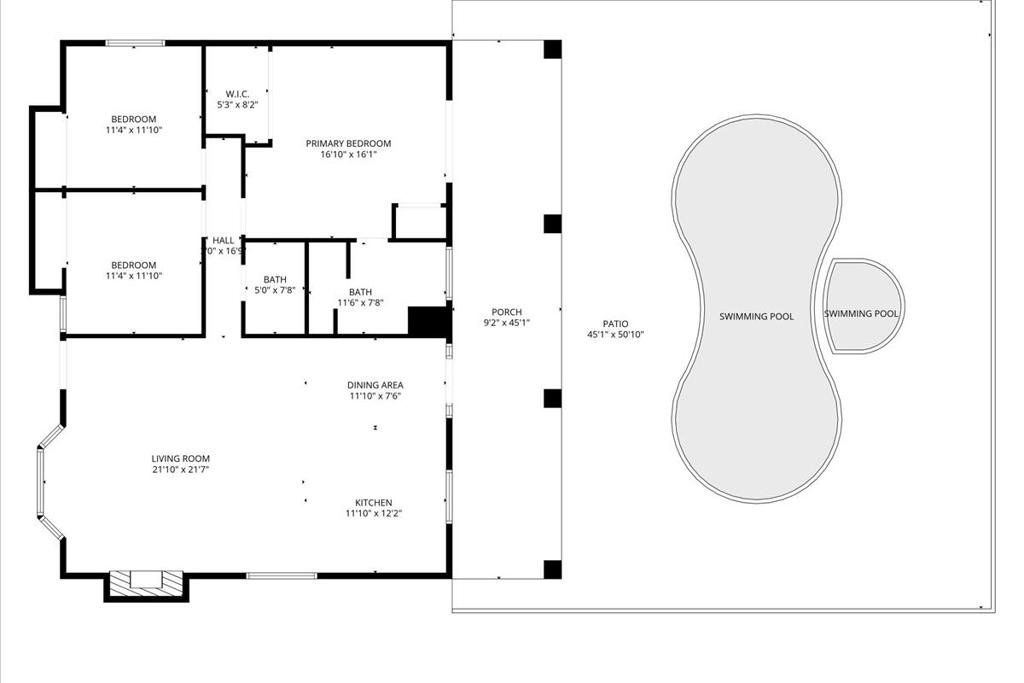
Welcome to a home filled with opportunity and promise! This spacious 3-bedroom, 2-bath, 1500 sq ft single-family residence has an open-concept layout designed for comfortable living and effortless entertaining. This inviting house has endless potential, featuring a private pool and spa that could transform the backyard into a personal retreat. Whether you're looking to create a modern family haven or a custom sanctuary tailored to your personal style, this home offers the perfect canvas to reimagine. Step inside to find an airy floor plan. Imagine gathering with loved ones in a spacious living room, hosting dinner parties in an expanded kitchen, or stepping outside to enjoy the California sunshine by the pool and spa. With a bit of vision and effort, you can transform this property into something truly special for your dream home come to life. With its solid structure and well-conceived layout, this home is an excellent opportunity for buyers with a keen eye for potential. A little renovation will go a long way toward unlocking its full beauty and function. It's ideally suited for a new owner looking to invest sweat equity into a long-term residence. If you're a DIY enthusiast eager to put your stamp on a property, this home is primed for transformation. Here's your opportunit to create a space that truly reflects your lifestyle. Bring your imagination, roll up your sleeves, and make this home your own! SUNRUN Solar Panel Lease has 10 years left. Monthly invoices vary $150 in winter to $200 in summer.
Robert LaDuke
Robert LaDuke Contact

Features & Amenities

Interior

Total Bedrooms 3
Total Bathrooms 2
Full Bathrooms 1
Three Quarter Bathrooms 1
Laundry Room In Garage
Flooring Carpet, Laminate
Fireplace Gas, Living Room
Appliances Gas Cooktop, Disposal, Gas Oven, Gas Range, Microwave, Refrigerator, Range Hood, Vented Exhaust Fan, Water To Refrigerator
Other Interior Features Separate/Formal Dining Room, High Ceilings, All Bedrooms Down, Walk-In Closet(s)

Exterior

Stories 1
Garage Space 2.0
Utilities Cable Available
POOL In Ground, Private
ROOF Tile
Parking Garage, Garage Door Opener, Side By Side
Heat type Central
Air Conditioning Central Air, Evaporative Cooling
Sewer Unknown
Green Features Solar

Area & Lot

Status For Sale
LIVING SPACE 1,501 Sq.Ft.
LOT SIZE 8,276 Sq.Ft.
MLS® ID 219140643DA
Type Residential
Year Built 1989
Neighborhood Cathedral City
Architecture Styles Mediterranean
View Description Mountain(s), Peek-A-Boo

Financial

SALES PRICE $480,000
image

Schedule a Showing

I would love to show you my beautiful property. Please select your preferred date and time below. I will be in touch shortly to confirm your appointment.

Schedule a Showing

I would love to show you my beautiful property. Please select your preferred date and time below. I will be in touch shortly to confirm your appointment.

Thank you for your interest in 68220 Mccallum Way, Cathedral City, CA 92234. We are reviewing your request and will be in touch shortly!

Mortgage Calculator

Estimate your monthly mortgage payment, including the principal and interest, property taxes, and HOA. Adjust the values to generate a more accurate rate.
All estimates are provided for informational purposes only. Actual amounts may vary.
$0,000 Your Payment 20 15 65
$0,000 Your Payment
Cathedral City

Cathedral City

Read more

Work With Robert

A detail-oriented and passionate agent, Robert provides his unique white glove service, superior negotiation skills, and knowledge of the real estate market to the table when assisting clients through the sometimes formidable process of buying or selling a home.

Let's Connect

Follow Me on Instagram